
Liikehuoneisto Haaga Helsinki
129 800 € | 51 m² | Ilkantie 13, Helsinki

Kohdetta välittää
KTM, LKV Antti Soivio
- 0400 446553
- [javascript protected email address]

KAUNEUSHOITOLA ETSII JATKAJAA TAI LIIKETILA UUTTA KÄYTTÄJÄÄ!
Nyt on myytävänä Helsingin Haagassa kaksi huonetta käsittävä, hyväkuntoinen ja valoisa liikehuoneisto. Myynnissä on myös pitkään tiloissa toimineen kasvo-, jalka- ja käsihoitoja tekevän kauneushoitolan liiketoiminta koneineen ja laitteineen. Huoneistosta on tällä hetkellä vuokrattuna noin puolet.
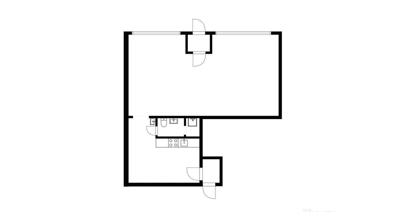
Huoneisto sijaitsee vilkkaan kadun varrella, näkyvällä paikalla katutasossa. Noin 51 m² huoneisto koostuu varsinaisesta liiketilasta sekä takahuoneesta, jossa on keittiö, wc- ja suihkutila sekä vielä erillinen vesipiste. Pienellä pintaremontilla tiloista saa upeat. Liiketila on oivallinen juuri kauneushoitolakäyttöön tai esimerkiksi hierojan tai kampaamon tarpeisiin.
Asiakkaille on liikehuoneiston edessä kaksi ilmaista pysäköintiruutua. Liikkeenharjoittajan on mahdollista vuokrata itselleen autopaikka taloyhtiöltä.
Vuonna 1960 rakennetun kerrostalon päätyjulkisivut on kunnostettu, lvis-remontti on juuri saatu valmiiksi ja ikkunoita sekä parvekkeita kunnostetaan parhaillaan. Myytävän liikehuoneiston osalta kaikki isot remontit on jo tehty.
Kauneushoitola on toiminut nykyisissä tiloissa vuodesta 2004, ja omistaja on ollut kauneudenhoitoalalla jo vuodesta 1983 lähtien. Liiketoiminnan ostamisesta kiinnostuneille on siis tarjolla myös vakiintunut, pitkäaikainen asiakaskunta. Liiketoiminta ja laitteisto myydään yhteishintaan 14’900 €.
NÄPPÄRÄ LIIKEHUONEISTO NÄKYVÄLLÄ PAIKALLA!
KOHDETIEDOT
SIJAINTI
Katuosoite: Ilkantie 13 E 18, 00400 Helsinki
Kaupunginosa: Haaga
Ympäristö: Kaupunki, kerrostaloja
RAKENNUS/HUONEISTO
Pinta-ala: Noin 51 m²
Rakennusvuosi: 1960
Kiinteistötyyppi: Kerrostalo
Tilatyyppi: Liikehuoneisto
Kunto, varusteet ja palvelut: Hyvä kunto
Pysäköinti: Asiakkaille kaksi ilmaista autopaikkaa, omistajalle vuokrattava autopaikka
Lämmitys: Kaukolämpö, vesikeskuslämmitys
MYYNTIHINTA, KULUT JA TULOT
Myyntihinta: 82’281 €
Velkaosuus: 47’519 €
Velatonhinta: 129’800 €
Liikehuoneistovastike: 418 €/kk
Rahoitusvastike: 295,80 €/kk
Sähkö- ja vesimaksu: Vesimaksu mittauksen mukaan
Lämmitysmaksu: Sisältyy vastikkeeseen
Vuokratulot: 600 €/kk

Kohteen ominaisuudet
-
Asfaltoitu piha
-
Ilmastointi
-
Keittiö
-
Parkkipaikat
-
Suihku
-
Vesipiste
-
WC
