
Toimistohuoneisto Järvihaka Nurmijärvi
132’000 € tai 970 €/kk, alv-vapaa | 113,5 m² | Järvihaantie 4, Nurmijärvi

Kohdetta välittää
KTM, LKV Antti Soivio
- 0400 446553
- [javascript protected email address]

NYT MYYNNISSÄ TAI VUOKRATTAVANA TYYLIKÄS, JUURI REMONTOITU TOIMISTOTILA KLAUKKALASSA!
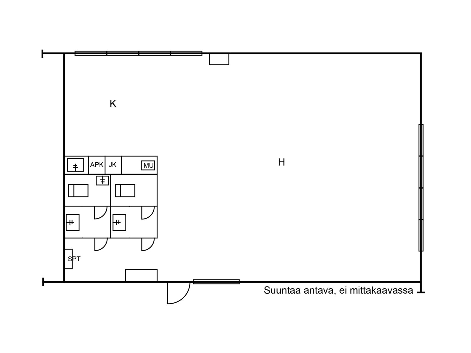
Nurmijärven Klaukkalassa Järvihaan kaupunginosassa on nyt myynnissä tai vuokrattavana tyylikäs ja siisti toimistotila. Tila on juuri remontoitu. Kaikki pinnat on maalattu, sähköt ja ikkunat on uusittu ja myös ilmanvaihtokone uusitaan. Keittiö on modernisoitu ja tilassa on tuliterä astianpesukone.
Noin 113,5-neliöinen toimisto sijaitsee rakennuksen toisessa kerroksessa. Kulmahuoneisto on avointa, avaraa tilaa, jossa on runsaasti ikkunoita. Toimistossa on hyvä valaistus. Avokeittiön lisäksi tiloissa on kaksi wc:tä, jotka on hauskasti maalattu perinteisin ”naisten ja miesten värein”.
Tilassa on tehty homekoiratarkastus. Huoneistossa tällä hetkellä olevat kalusteet kuuluvat kauppaan ja myös vuokralaisella on oikeus käyttää niitä.
Asfaltoidussa pihassa on runsaasti parkkipaikkoja.
Rakennus sijaitsee erinomaisella paikalla lähellä Klaukkalan palveluja. Lisäksi saman rakennuksen ensimmäisessä kerroksessa on lounasravintola. Paikasta on myös hyvät liikenneyhteydet; Valtatie kolmoselle on matkaa vain viitisen kilometriä.
ERINOMAINEN SILJAINTI KLAUKKALAN KESKUSTAN TUNTUMASSA!
KOHDETIEDOT
SIJAINTI
Katuosoite: Järvihaantie 4, 01800 Nurmijärvi
Kaupunginosa: Järvihaka
Ympäristö: Teollisuusalue ja asuinaluetta
TONTTI
Pinta-ala: 6’110 m²
Omistusmuoto: Oma tontti
RAKENNUS/HUONEISTO
Pinta-alat: Noin 113,5 m²
Kiinteistötyyppi: Liikekiinteistö
Huoneistoselitelmä: Toimistohuoneisto
Kerros: 2./2.
Kunto, varusteet ja palvelut: Juuri remontoitu, iso avotila, avokeittiö, kaksi wc:tä, Klaukkalan keskustan palvelut lähellä, lounasravintola samassa rakennuksessa
Lämmitys: Sähkölämmitys
Pysäköinti: Pihassa
Vapautuminen: Erikseen sovitusti
MYYNTIHINTA
Velaton myyntihinta: 132’000 €
Hoitovastike: 329,15 €/kk
VUOKRAHINTA JA KULUT:
Kuukausivuokra: 970 €/kk, alv-vapaa
Sähkömaksu: Kulutuksen mukaan (vuokralainen tekee oman sopimuksen)
Vesimaksu: Kulutuksen mukaan
Lämmitys: Vuokralainen maksaa
Muut ehdot: Minimisopimuskausi 12 kk, vakuus 3 kk:n vuokraa vastaava summa, luottotietojen oltava kunnossa

Kohteen ominaisuudet
-
Asfaltoitu piha
-
Ilmastointi
-
Keittiö
-
Parkkipaikat
-
Toimistotila
-
Vesipiste
-
WC
