
Toimistohuone Ölstens Porvoo
670 €/kk + alv | 45 m² | Urakoitsijantie 15 A 1, Porvoo

Kohdetta välittää
KTM, LKV Antti Soivio
- 0400 446553
- [javascript protected email address]

SIISTI TOIMISTOTILA VUOKRATTAVANA PORVOON ÖLSTENSISSÄ!
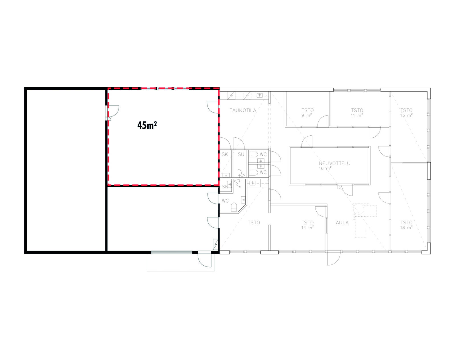
Porvoon Ölstensin alueella on vuokrattavana siisti toimistohuone. Huone sijaitsee ison hallirakennuksen päätytiloissa, jotka on väliseinin jaettu useamman käyttäjän tyylikkäiksi toimistoiksi. Nyt vuokrattavana oleva, noin 45-neliöinen huone on merkitty pohjakuvaan punaisella katkoviivalla.
Kaikkien vuokralaisten yhteiskäytössä ovat niin kutsuva aulatila, kaunis keittiö, valoisa neuvotteluhuone kuin wc-tilat ja suihkukin. Neuvotteluhuoneen seiniä ei ole rakennettu ulottumaan kiinni sisäkattoon saakka, mutta tarpeen vaatiessa huoneeseen on mahdollista rakentaa umpikatto.
Tiloissa on koneellinen ilmanvaihto. Paikalla käy siivoaja, joka siistii yhteisten tilojen lisäksi toimistohuoneet.
Tilat sopivat vain arvonlisäverovelvolliseen yrityskäyttöön.
Alueella on asfaltoidut ja aidatut piha-alueet. Yritysalue kuuluu Securitaksen vartiointipiiriin ja alueella on useampi tallentava valvontakamera sekä GSM-ohjatut portit.
Toimiston edessä on hyvin pysäköintitilaa ja liikenneyhteydet paikalle ovat sujuvat.
KUTSUVAT YHTEISET TILAT!
KOHDETIEDOT
SIJAINTI
Katuosoite: Urakoitsijantie 15 A 1, 06450 Porvoo
Kaupunginosa: Ölstens
Ympäristö: Yritysalue
RAKENNUS
Pinta-alat: 45 m²
Rakennusvuosi: 2004
Kiinteistötyyppi: Toimisto- ja hallirakennus
Tilatyyppi: Toimistotila
Kunto, varusteet ja palvelut: Erinomainen kunto, koneellinen ilmanvaihto, yhteiskäytössä aulatila, keittiö, neuvotteluhuone, wc-tilat, suihku
Pysäköinti: Paljon pysäköintipaikkoja toimiston edessä
Lämmitys: Maalämpö
Vapautuu: Sopimuksen mukaan
VUOKRAHINTA JA KULUT:
Kuukausivuokra: 670 €/kk + alv
Sähkömaksu: 60 €/kk + alv
Vesimaksu: Sisältyy vuokraan
Lämmitys: Sisältyy vuokraan
Siivousmaksu: 70 €/kk + alv
Internet tarvittaessa: 50 €/kk + alv
MUUTA: Minimisopimuskausi 12 kk, vakuus 3 kk:n vuokraa vastaava summa, luottotietojen oltava kunnossa

Kohteen ominaisuudet
-
Aidattu alue
-
Asfaltoitu piha
-
Ilmastointi
-
Keittiö
-
Parkkipaikat
-
Suihku
-
Toimistotila
-
Vesipiste
-
WC
