
Lastauslaiturillista varastotilaa Pitäjänmäki Helsinki
Alkaen 109 €/kk + alv | 7,3–410 m² | Atomitie 1, Helsinki

Kohdetta välittää
KTM, LKV Antti Soivio
- 0400 446553
- [javascript protected email address]

Vuokrattavana lastauslaiturillista varastotilaa Pitäjänmäellä!
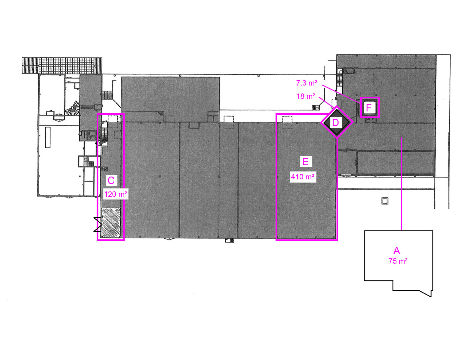
Helsingin Pitäjänmäellä on vuokrattavana useita eri kokoisia varastotiloja, kaikki samassa rakennuksessa. Tilat eivät sovellu autopesulaksi tai -korjaamoksi eivätkä elintarviketuotantoon.
Varastotila A on noin 75 m² ja tilan korkeus on noin 3,3 metriä. Varastoon kuljetaan lastauslaiturin, luiskan ja portaan kautta, ja tilaan johtava käytävä on noin 150 cm leveä. Vuokra 869 €/kk + alv, lisäksi sähkö/vesi/yleiskulut 30 €/kk + alv.
Varastotila C on noin 120 m². Varastoon kuljetaan tavallisen käyntioven kautta, mutta tarvittaessa käyttöön voi ottaa myös lastausoven (L 2,4 m x K 3,1 m). Vuokra 1’399 €/kk + alv, sisältää sähkö/vesi/yleiskulut.
Toimisto/varastotila D, noin 18 m². Kulku suoraan lastauslaiturin, luiskan ja portaan kautta. Vuokra 229 €/kk + alv, sähkö/vesi yleiskulut 20 €/kk + alv.
Korkea hallitila E, noin 410 m². Kulku suoraan lastauslaiturin, luiskan ja portaan kautta, tilaan johtavan oven koko L 2,5 m x K 2,9 m. Hallissa on valmiina hyllyköt. Vuokra 4’249 + alv, sähkö/vesi yleiskulut 150 €/kk + alv.
Varastotila F, noin 7,3 m². Kulku lastauslaiturin, luiskan ja portaan kautta, tilan ovelle johtavan käytävän leveys 150 cm, varaston oven koko L 2,1 m x K 2,4 m. Tilan korkeus 2,4 m, leveys 2,1 m ja syvyys 3,4 m. Vuokra 109 €/kk + alv, sähkö/vesi yleiskulut 10 €/kk + alv.
Kaikilla vuokralaisilla on käytössään vesi, sähkö sekä yhteis-wc. Lämmitys sisältyy kaikkiin vuokrahintoihin.
Piha-alue on asfaltoitu ja siitä on vuokrattavana rajoitettu määrä pysäköintipaikkoja.
Paikalta on lyhyt matka Vihdintielle!
Kohdetiedot
Sijainti
Katuosoite: Atomitie 1, 00370 Helsinki
Kaupunginosa: Pitäjänmäki
Ympäristö: Teollisuusalue
Rakennus/Huoneisto
Pinta-alat: Noin 7,3–410 m²
Huoneistotyyppi/Käyttötarkoitus: Varastotila
Kunto, varusteet ja palvelut: Hyvä kunto, yhteisvessa
Pysäköinti: Parkkipaikkoja vuokrattavissa rajoitetusti
Vapautuu: Nopeasti
Vuokrahinta
Kuukausivuokra: Alkaen 109 €/kk + alv, ks. hinnat yllä
Vesi- ja sähkömaksu, muut yhteiskulut: Alkaen 10 €/kk + alv, ks. hinnat yllä
Lämmitys: Sisältyy vuokraan
Muut ehdot: Sopimus toistaiseksi voimassa oleva 6 kuukauden irtisanomisajalla, vakuus 3 kk:n vuokraa vastaava summa, luottotietojen on oltava kunnossa

Kohteen ominaisuudet
-
Asfaltoitu piha
-
Ilmastointi
-
Lastauslaituri
-
Parkkipaikat
-
Vesipiste
-
Voimavirta
-
WC
