
Tuotanto- ja varastorakennus Heikinlaakso Helsinki
769'000 € / 6,90€/m²/kk + alv | 1’100 m² (kerrosala) | Sienikuja 6, Helsinki

Kohdetta välittää
KTM, LKV Antti Soivio
- 0400 446553
- [javascript protected email address]

Myydään tai vuokrataan hyväkuntoinen tuotanto- ja varastorakennus Heikinlaaksossa!
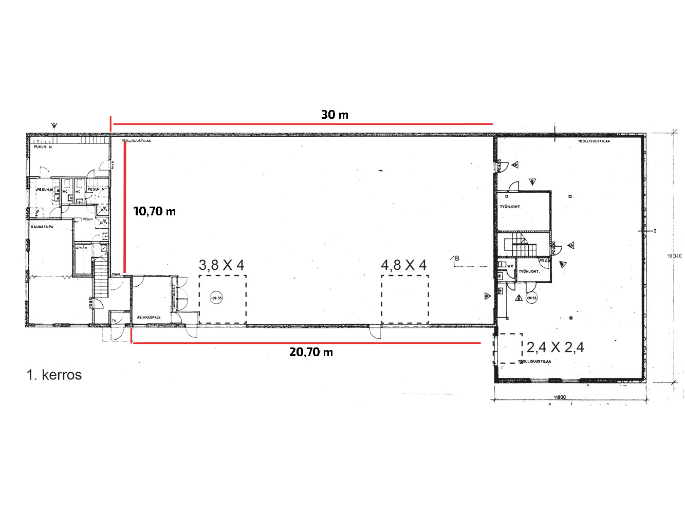
Myydään tai vuokrataan hyväkuntoinen tuotanto- ja varastorakennus Heikinlaakson teollisuus- ja asuinalueella. Kohteessa on monenlaista ja moneen eri käyttöön soveltuvaa tilaa, avaraa hallitilaa, siistiä toimistotilaa, tyylikäs keittiö, taukotilat, sauna, suihkut ja useampi wc.
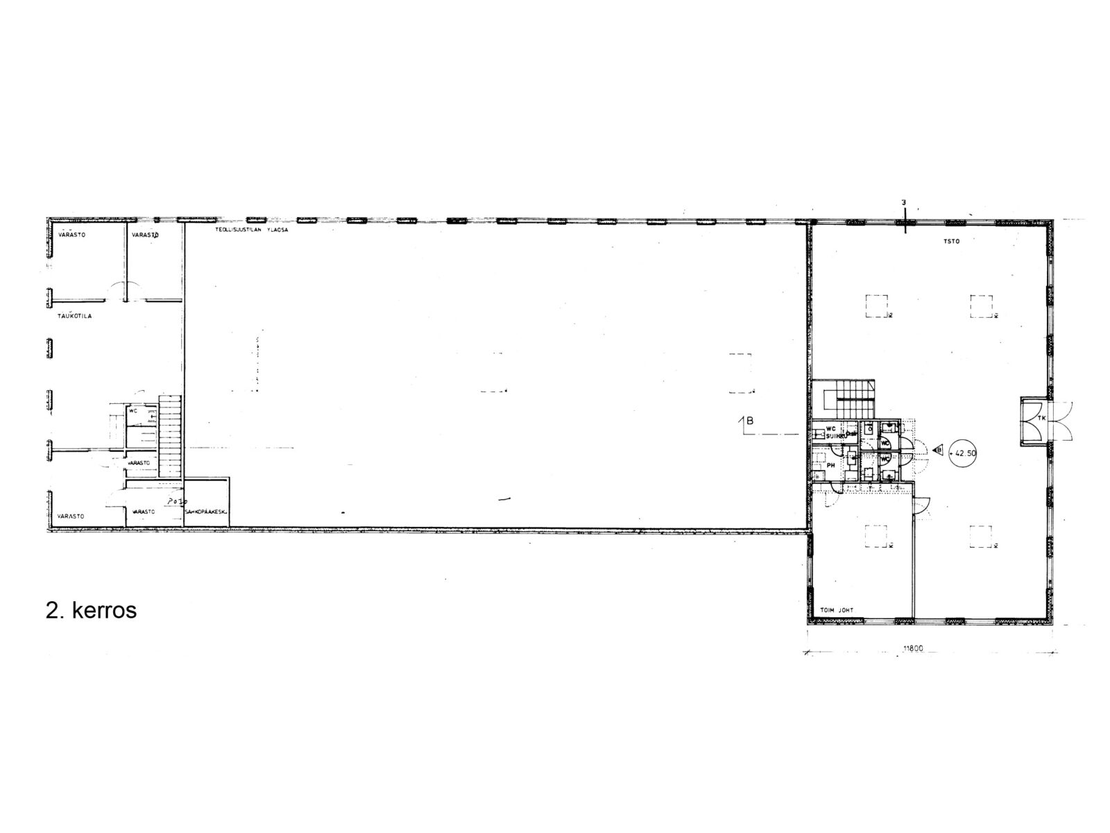
Kerrosalaltaan noin 1’100-neliöisessä rakennuksessa on korkeaa hallitilaa noin 552 m². Sisällä vapaa korkeus noin 5 metriä. Hallissa on myös säilytysparvea noin 144,5 m² (14,5 m x 10,0 m). Parven ja katon välissä noin 2,2 metriä ja parven ja lattian välissä noin 2,5 metriä. Tilassa on kaksi isoa, sähkökäyttöistä nosto-ovea, joiden mitat ovat L 3,8 m x K 4 m sekä L 4,8 m x K 4 m.
Matalammassa hallissa on leveydeltään ja korkeudeltaan 2,4-metrinen nosto-ovi.
Molemmissa halleissa olevat hyllyt on mahdollista ostaa.
Kiinteistö on rakennettu kahdessa eri vaiheessa. Uudempi, noin 650-neliöinen osa on vuodelta 1989 ja vanhempi, noin 456-neliöinen osa vuodelta 1984. Rakennuksen katto on uusittu kuusi vuotta sitten.
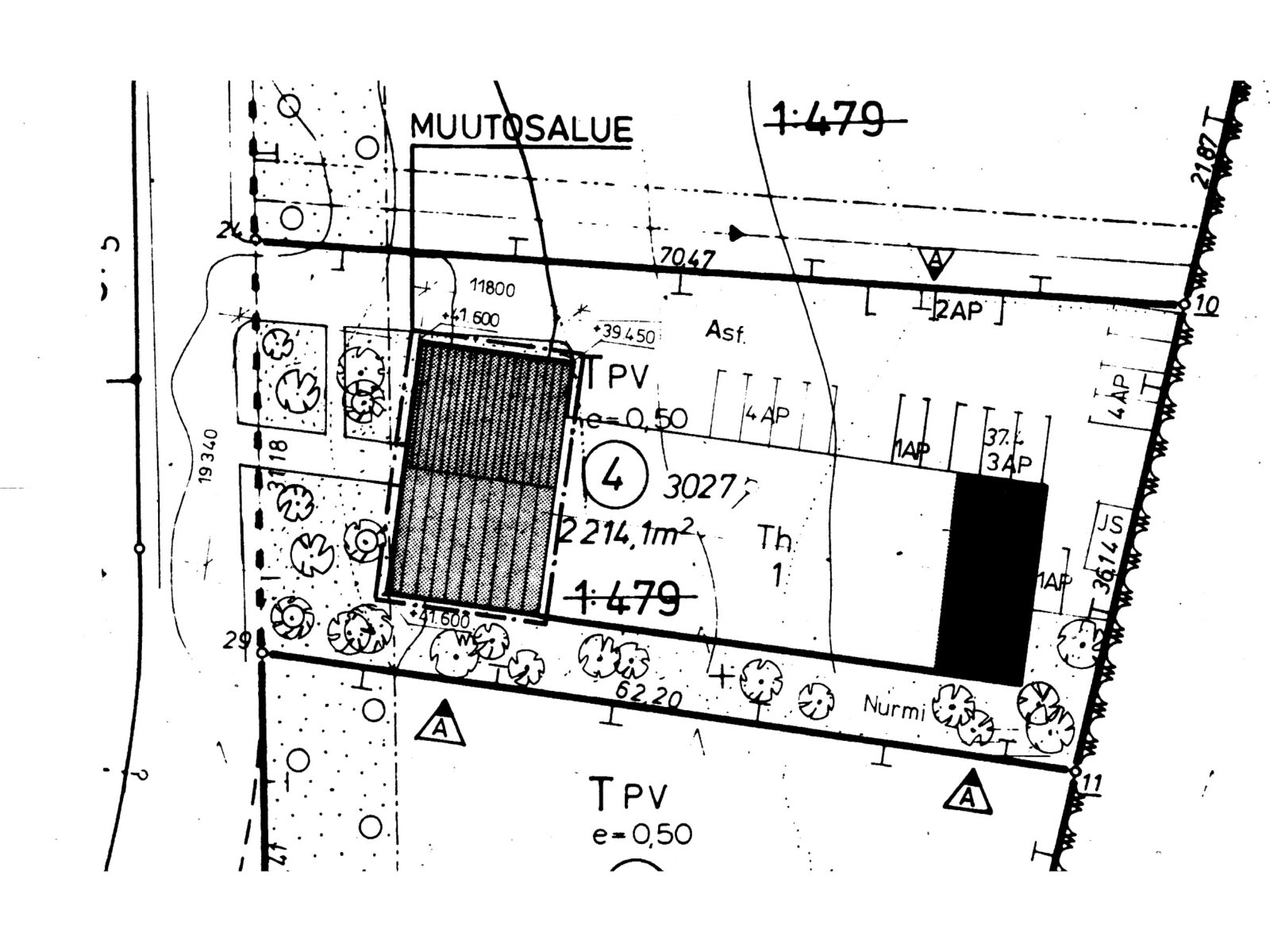
Rakennus sijaitsee 2’214 m²:n vuokratontilla. Tontin vuokra-aika päättyy 31.12.2040. Lisäksi vuokrattuna on 250 m²:n puistoalue Helsingin kaupungilta.
Nykyinen toimija lähtee tiloista heinä- ja elokuun aikana.
Rakennuksen iso piha on asfaltoitu. Piha-alueella on hyvin pysäköintitilaa. Pihassa on myös kaksi kevytrakenteista, kylmää varastorakennusta.
Vuokrattaessa tiloja, vastaa vuokralainen itse sekä jätehuollosta että vesi-, sähkö- ja lämmityskuluista Talvella vuokralainen hoitaa myös pihojen auraukset itse.
Mainio sijainti Kehä III:n, Lahden moottoritien sekä Kehä I:n tuntumassa!
Soita ja kysy lisää!
KOHDETIEDOT
SIJAINTI
Katuosoite: Sienikuja 6, 00760 Helsinki
Kaupunginosa: Heikinlaakso
Ympäristö: Teollisuutta ja asuntoja
TONTTI
Pinta-ala: Tontti 2’214 m² + puistoalue 250 m²
Omistus: Vuokratontti, vuokra-aika päättyy 31.12.2040
Kiinteistötunnus: 91-41-172-4-L2
RAKENNUS/HUONEISTO
Pinta-ala: 1’100 m² (kerrosala) + 150 m² säilytysparvea
Huoneistoselitelmä: Halli-, toimisto- ja varastotiloja, keittiö, sauna, suihku, wc:t
Kunto, varusteet ja palvelut: Hyvä kunto, kaksi isoa nosto-ovea, yksi pienempi nosto-ovi
Lämmitys: Sähkö
Rakennusvuosi: 1984 ja 1989
Pysäköinti: Pihassa
MYYNTIHINTA JA KULUT
Velaton myyntihinta: 769'000 €
Lämmitys: Sähkölämmityksen kulut noin 10’000 €/v
Sähkö- ja vesimaksut: Mittauksen/kulutuksen mukaan
Tontin vuokra: Tontti 12’000 €/v + puistoalue 125 €/kk
VUOKRAIHINTA JA KULUT
Kuukausivuokra: 6,90 €/m²/kk + alv
Lämmitys: Vuokralainen vastaa itse kuluista
Sähkö- ja vesimaksut: Vuokralainen vastaa itse kuluista
Jätehuolto ja auraus: Vuokralainen vastaa itse kuluista
Muuta: Minimisopimuskausi 12 kk, vakuus 3 kk:n vuokraa vastaava summa, luottotietojen oltava kunnossa



Kohteen ominaisuudet
-
Asfaltoitu piha
-
Ilmastointi
-
Keittiö
-
Nosto-ovi
-
Parkkipaikat
-
Parvi
-
Sauna
-
Suihku
-
Toimistotila
-
Vesipiste
-
Voimavirta
-
WC
