
Liikekiinteistö Koskenkylä Loviisa
Tarjousten perusteella | 360 m² | Koskenkyläntie 2, Loviisa

Kohdetta välittää
KTM, LKV Antti Soivio
- 0400 446553
- [javascript protected email address]

Myydään liikekiinteistö Koskenkylän tunnetulla levähdyspaikalla!
Itäliikenteen tunnetulta levähdyspaikalta myydään monien mahdollisuuksien liikekiinteistö sekä 1,17 hehtaarin tontti, joka rajoittuu Hammarkoskeen.
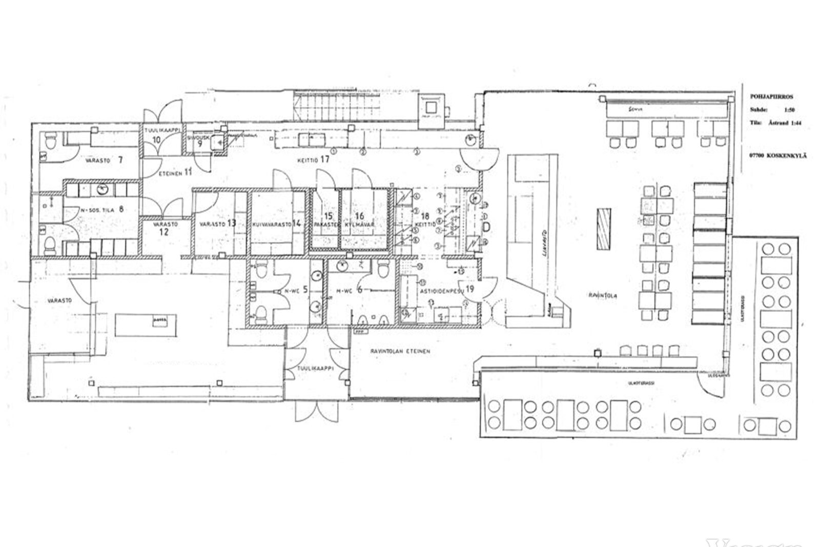
Rakennus valmistui vuonna 1965 ja on pinta-alaltaan noin 300 m². Ensimmäisessä kerroksessa on tilava ravintolasali, jonka yhteydessä on isompi, hyvin varusteltu keittiö, erillinen kabinetti (vieressä pienkeittiö), toimisto, henkilökunnan sosiaalitilat sekä asiakasvessat. Kiinteistössä on myös varastokellari pinta-alaltaan 60 m² sekä kaksi alun perin autotalleina ollutta varastotilaa. Tällä hetkellä rakennuksessa toimii kahvila/ravintola. Kahvilasalin kalusteet ja laitteet sekä keittiön koneet on mahdollista ostaa kaupan yhteydessä edulliseen hintaan.
Aiemmin kiinteistössä on ollut myös pizzeria, leipä- ja kukkamyymälä sekä autohuoltopiste. Huollon peruja oleva rasvamonttu on poistettu käytöstä, mutta sen voi tarvittaessa ottaa uudelleen käyttöön lattiaa purkamalla.
Rakennusta on kunnostettu ja päivitetty säännöllisesti; muun muassa katto on uusittu ja julkisivu maalattu pari vuotta sitten. Lämmitys tapahtuu ilma/vesikierto-lämpöpumpuilla (varalla öljylämmitys) ja kiinteistö on siirtynyt kunnalliseen jätevesijärjestelmään. Rakennuksessa on suurkeittiökaasujärjestelmä, jossa on paikka neljälle 33 kg:n kaasupullolle.
Levähdyspaikan polttoaineenjakelupiste on vuokrattu tuottoisalla sopimuksella Nesteelle 30.8.2030 saakka. Lisäksi rakennuksen päädystä on vuokrattu paikka kahdelle Telian antennille. Nettotuotto näistä on noin 12’500 €/vuosi.
Piha-alue on asfaltoitu ja erittäin suuri; siinä mahtuvat isommatkin yhdistelmät kääntymään tai kiertämään rakennuksen.
Tässä hieno mahdollisuus kehittää jotain uutta jo tunnetulle sijainnille!
Kohdetiedot
Sijainti
Katuosoite: Koskenkyläntie 2, 07700 Loviisa
Kaupunginosa: Koskenkylä
Ympäristö: Huoltoasema, Koskenkylän levähdyspaikka
Tontti
Pinta-ala: 1,1765 ha (Tilan nimi Åstrand)
Omistus: Oma
Rakennus/huoneisto
Pinta-ala: Liiketila 300 m², kellari 60 m² = 360 m²
Huoneistoselitelmä: Liikerakennus, jossa kahvila/ravintola, kabinetti, keittiö, pienkeittiö, toimisto sekä wc- ja sosiaalitilat, kellarissa varastotilaa
Kunto: Hyväkuntoiset tilat
Varusteet ja palvelut: Kahvilasalin kalusteet ja laitteet sekä keittiön koneet
Pysäköinti: Pihassa
Myyntihinta
Myyntihinta: Myydään tarjousten perusteella
Muut kulut: Kiinteistövero ja lämmityskulut

Kohteen ominaisuudet
-
Asfaltoitu piha
-
Ilmalämpöpumppu
-
Ilmastointi
-
Keittiö
-
Parkkipaikat
-
Toimistotila
-
Vesipiste
-
Voimavirta
-
WC
