
Ennakkomyynnissä liiketila Oulunkylä Helsinki
132'000 € | 44 m² | Teininrinne 3, Helsinki

Kohdetta välittää
KTM, LKV Antti Soivio
- 0400 446553
- [javascript protected email address]

Ennakkomarkkinoinnissa Oulunkylään valmistuva asuinkerrostalon liiketila!
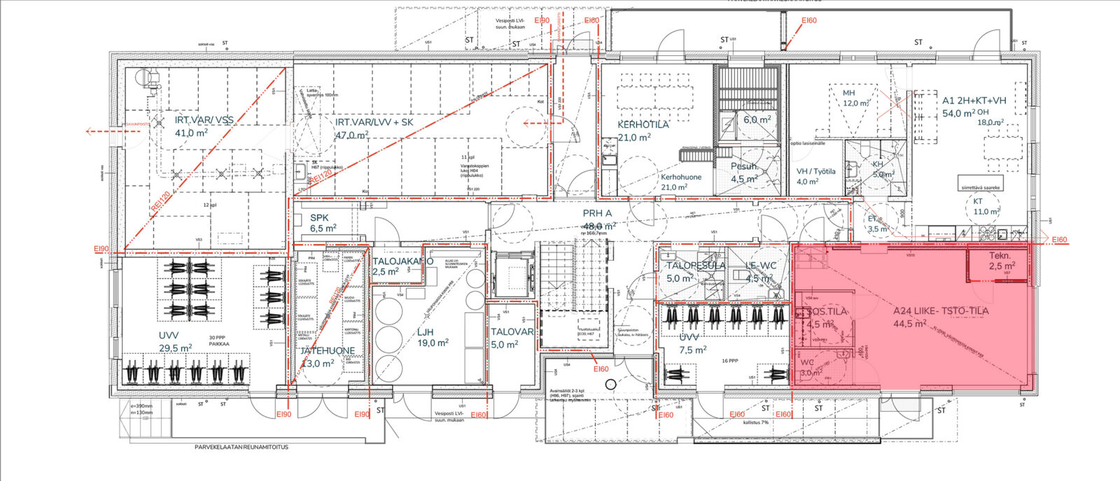
Oulunkylään valmistuu vuodenvaihteessa 2024–2025 uusi Asunto Oy Helsingin Oulunkylän Paraatin asuinkerrostalo. Kerrostalon kivijalassa on nyt ennakkomyynnissä noin 44 m² liiketila.
Avoin ja selkeä liiketila. Tilassa lisäksi wc, minikeittiö ja isot näyteikkunat. Yhtiö on A-energialuokkainen, lämpenee maalämmöllä ja aurinkopaneelit tuotavat sähköä taloyhtiön käyttöön!
Kohde sijaitsee Oulunkylän liikenneyhteyksien solmukohdassa. Juna-asemalle n. 0,5 km ja uuden Raide- Jokerin pysäkki lähes suoraan tulevan rakennuksen edessä. Oulunkylän muut arkipäivän palvelut (kaupat, päiväkoti, neuvola, kirjasto) lyhyen kävelymatkan päässä Oulunkylän aseman vieressä. Helsingin keskustaan on vain noin 9 kilometriä ja junalla keskustaan 10 min.
Vuokratontti, jonka pinta-ala on 1397 m². Tontin vuokra-aika on 2023–2085. Asfaltoidut piha-alueet.
Kohde on vapaarahoitteinen. Myyjä pidättää oikeuden tarkistaa tilakokoja, hintoja, valmistumisajankohtaa sekä varustelua rakentamisen edetessä.
Tässä on hyvä kaupallinen sijainti nyt ja tulevaisuudessa!
Kohdetiedot
Sijainti
Katuosoite: Teininrinne 3, 00640 Oulunkylä
Ympäristö: Asuinaluetta ja Oulunkylän kaikki palvelut lähellä
Tontti
Pinta-ala: 1397 m²
Omistus: Vuokratontti ( vuokra-aika on 2023–2085)
Rakennus/huoneisto
Pinta-alat: Noin 44 m² (ei tarkastusmitattu)
Huoneistoselitelmä: Liiketila
Huoneistotyyppi/Käyttötarkoitus: Liiketila tai toimistotila
Hissi: Kyllä
Kerros: Katutaso
Kunto, varusteet ja palvelut: Wc, minikeittiö. Ennakkomyynnissä oleva katutason liiketila, arvioitu valmistumisajankohta vuodenvaihteessa 2024–2025.
Myyntihinta ja kulut
Velatonhinta: 132’000 €
Hoitovastike: 132 €/kk (alustava arvio)
Rahoitusvastike: 189 €/kk (alustava arvio)
Sähkö- ja vesimaksu: Mittauksen mukaan
Lämmitys: Maalämpö ja aurinkopaneelit


Kohteen ominaisuudet
-
Asfaltoitu piha
-
Henkilöhissi
-
Keittiö
-
Parkkipaikat
-
Toimistotila
-
Vesipiste
-
WC
