
Toimisto Söderkulla Sipoo
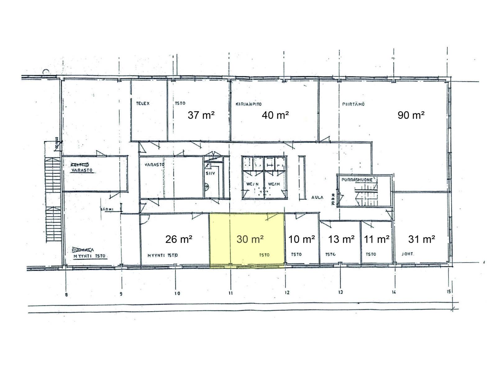
280 €/kk + alv | 30 m² | Kay Hartwallin tie 1, Söderkulla

Kohdetta välittää
KTM, LKV Antti Soivio
- 0400 446553
- [javascript protected email address]

Vuokrattavana edullinen toimistohuone Sipoonlahden liittymän läheisyydessä!
Sipoonlahdessa on vuokrattavana hyvällä sijainnilla mukava toimistohuone. Vuokralaisella on käytössään yhteiset keittiö- ja wc-tilat. Lisäksi vuokralaisella on mahdollisuus käyttää kuntosalia nimellistä korvausta vastaan.
Sähkö-, vesi- ja lämmityskustannukset sisältyvät vuokraan. Vuokralainen vastaa itse jätehuollostaan.
Pihassa on runsaasti parkkipaikkoja.
Paikalta on lyhyt matka Sipoonlahden moottoritieliittymään.
Edullinen tila kätevällä sijainnilla!
Kohdetiedot
Sijainti
Osoite: Kay Hartwallin tie 1, 01150 Sipoo
Kaupunginosa: Sipoonlahti
Ympäristö: Teollisuusalue
Rakennus/huoneisto
Pinta-alat: Noin 30 m²
Huoneistoselitelmä: Toimistohuone, yhteiset keittiö- ja wc-tilat
Kunto: Hyvä kunto
Varusteet ja palvelut: Hyvät parkkipaikat, kuntosali, hyvät kulkuyhteydet
Vapautuu: Vapautuu 1.2.2024
Vuokrahinta ja kulut
Kuukausivuokra: 280 €/kk + alv
Sähkö: Sisältyy vuokraan
Vesimaksu: Sisältyy vuokraan
Lämmitys: Sisältyy vuokraan
Muuta: Minimisopimuskausi 12 kk, vakuus 3 kk:n vuokraa vastaava summa, luottotietojen oltava kunnossa

Kohteen ominaisuudet
-
Asfaltoitu piha
-
Keittiö
-
Parkkipaikat
-
Toimistotila
-
Vesipiste
-
WC
